當前位置: 主頁 > 裝修案例 > 太原裝修有幾個好公司-太原市萬柏林好的裝修公司-太原裝修裝修公司
案例風格
現代簡約
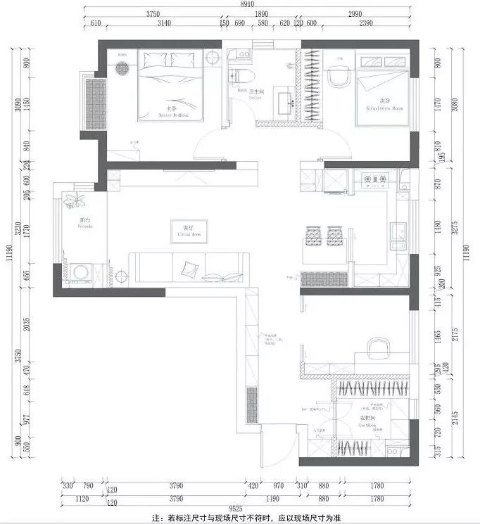
案例戶型
三居室
設計師
申煒銘
房屋面積
110m2


客廳、餐廳、廚房,三個空間都在同一水平線上,廚房和餐廳之間,用黑框的推拉門離隔,透明的玻璃門,沒有阻擋視界,視覺空間變得非常大。

玄關的當地,對面的墻面上,有一幅裝飾畫,下面是用木質板做成的一個擱板,下面再規劃掛鉤,這樣收納作用和裝飾作用都大大增強。

一排大矮柜,周圍留出一小截空間規劃換鞋凳,鞋柜上面還能夠擺放小擺件。

客廳比較小新鮮風,米灰色的沙發,白色和灰色相間的墻面,顏色新鮮的裝飾畫,都讓人很舒適輕松的感覺。

電視背景墻是整面純藍色,沒有剩余凌亂的規劃,沒有裝飾畫,在靠窗的周圍面墻壁上規劃壁龕,可以放一些書本。

書房的一面墻面是書架,一面墻面是裝飾畫相冊墻,窗戶的采光性非常好,書房很通透亮堂。

木質四角方形的餐桌,運用卡座當餐椅,節省空間,玻璃門讓廚房的陽光也透進了餐廳

臥室比較沉穩大氣,床頭橙色和床頭柜上的金屬質感的臺燈,有點輕奢風。


襯衫、外套、衣服、鞋子,分類擺放,精致大氣。

衛生間的墻面規劃感一同,上面是白色,會讓整個空間看上去亮堂許多,下面是深灰色的瓷磚鋪的,很耐臟又很沉穩。
文章說明:裝修效果圖是本公司為業主提供的原創設計展示,如需轉載請提前聯系本公司。知識類內容為小編手寫原創,圖片因需要與內容有更高的匹配度因此部分來源于網絡,如有侵權請聯系本公司,小編第一時間整改刪除。
免費申請戶型規劃
專屬設計師免費1對1全程服務
你家預算
108080元
免費電話報價
13453430516