當前位置: 主頁 > 裝修案例 > 太原設計師裝修公司-太原市工裝裝修公司-太原實惠的裝修公司
案例風格
現代簡約
案例戶型
二居室
設計師
左振琪
房屋面積
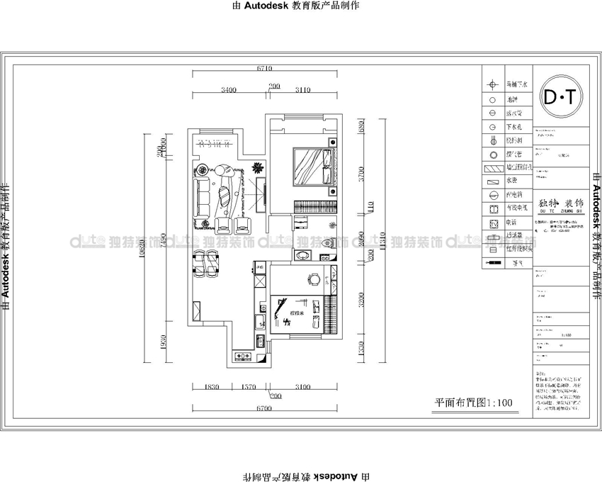
88m2
案例設計師:左振琪
小區:逍邦
造價:大包5.2
面積:88
區域:太原萬柏林區
幾室幾廳:兩室兩廳一廚一衛
裝修風格:現代
案例說明:本案平米數雖然不是很大,但是裝修前期設計方案溝通了很多次,客戶的設計理念比較前衛,能夠接受開放式廚房,拆改后反復斟酌空間的合理充分利用,得到了客戶的一致好評,還說下套房子還要過來找我,內心很溫暖也很有成就感。







文章說明:裝修效果圖是本公司為業主提供的原創設計展示,如需轉載請提前聯系本公司。知識類內容為小編手寫原創,圖片因需要與內容有更高的匹配度因此部分來源于網絡,如有侵權請聯系本公司,小編第一時間整改刪除。
免費申請戶型規劃
專屬設計師免費1對1全程服務
你家預算
108080元
免費電話報價
13453430516