當前位置: 主頁 > 裝修案例 > 太原萬柏林區好的裝修公司-太原別墅裝修公司大全-太原裝修公司排名值得信賴
案例風格
中式風格
案例戶型
二居室
設計師
梁鵬
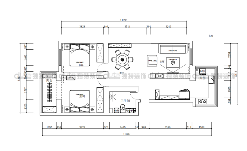
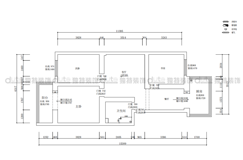
房屋面積
90m2
案例設計師:梁鵬
小區:山大醫院宿舍
造價:7.6W
面積:90m2
區域:全屋
幾室幾廳:兩室三廳一衛
裝修風格:新中式
案例說明:整體方案以現代中式風格為主,主要采用暖灰色系列,整體裝修以簡約大方為主。整套方案空間感比較良好,整個家的墻壁使用高級灰乳膠漆,顯得更加清新舒適。吊頂造型也比較簡單,全屋地面整體采用灰色系列拋釉大地磚通鋪。色調的統一和諧,搭配上簡約舒適的棉麻材質的布藝,簡單而又靜雅,是整個家的靈魂所在。







文章說明:裝修效果圖是本公司為業主提供的原創設計展示,如需轉載請提前聯系本公司。知識類內容為小編手寫原創,圖片因需要與內容有更高的匹配度因此部分來源于網絡,如有侵權請聯系本公司,小編第一時間整改刪除。
免費申請戶型規劃
專屬設計師免費1對1全程服務
你家預算
108080元
免費電話報價
13453430516