當前位置: 主頁 > 裝修案例 > 太原裝修公司排行榜-太原太原裝修公司排名-太原店鋪十大裝修公司排行榜
案例風格
現代簡約
案例戶型
四居室
設計師
陳方武
房屋面積
205m2
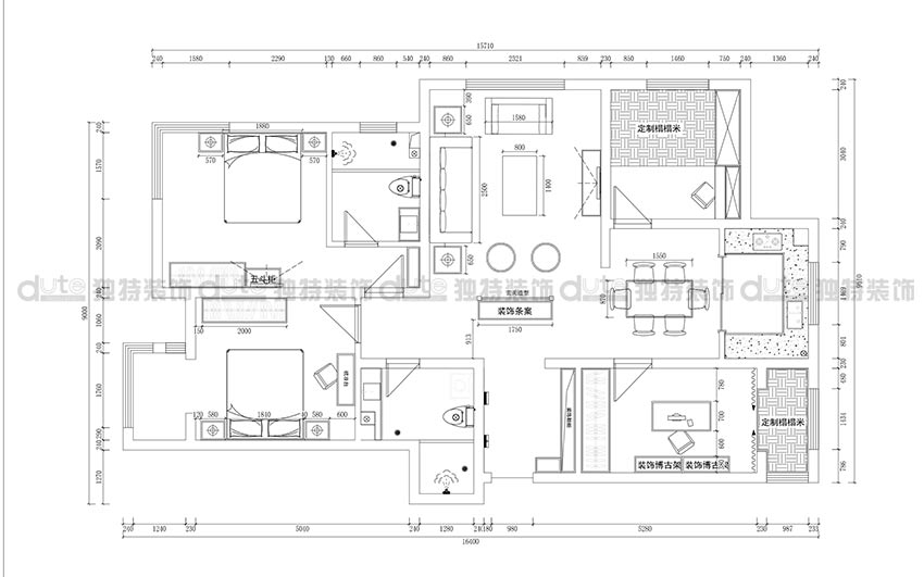
小區:中正睿城
戶型:四居
面積:205㎡
風格:新中式
裝修方案:大包
預算:15w
主要材料:壁紙、石膏板、瓷磚
整體方案以新中式風格為主,主要采用米色系列,家具選用顏色偏穩重的實木家具,戶主是一對中年夫妻,整體裝修以穩重得體為主。整套方案空間感比較良好,整個家的墻壁使用米色壁紙,顯得更加穩重大氣。吊頂造型采用回字形吊頂和地面的拼花進行一個呼應,頂面中間加一圈鈦金條,穩重之中不失時尚。搭配上整套實木家具,簡單而又靜雅,是整個家的靈魂色所在。 “人,詩意地棲居在大地上。”自古以來,文人雅士寄情山水、吟詩作畫,即是詩意棲居的體現,他們富于人文雅趣的生活方式,依然是許多現代人心中的追求和向往。








文章說明:裝修效果圖是本公司為業主提供的原創設計展示,如需轉載請提前聯系本公司。知識類內容為小編手寫原創,圖片因需要與內容有更高的匹配度因此部分來源于網絡,如有侵權請聯系本公司,小編第一時間整改刪除。
免費申請戶型規劃
專屬設計師免費1對1全程服務
你家預算
108080元
免費電話報價
13453430516